Categorie: Particuliere woningen

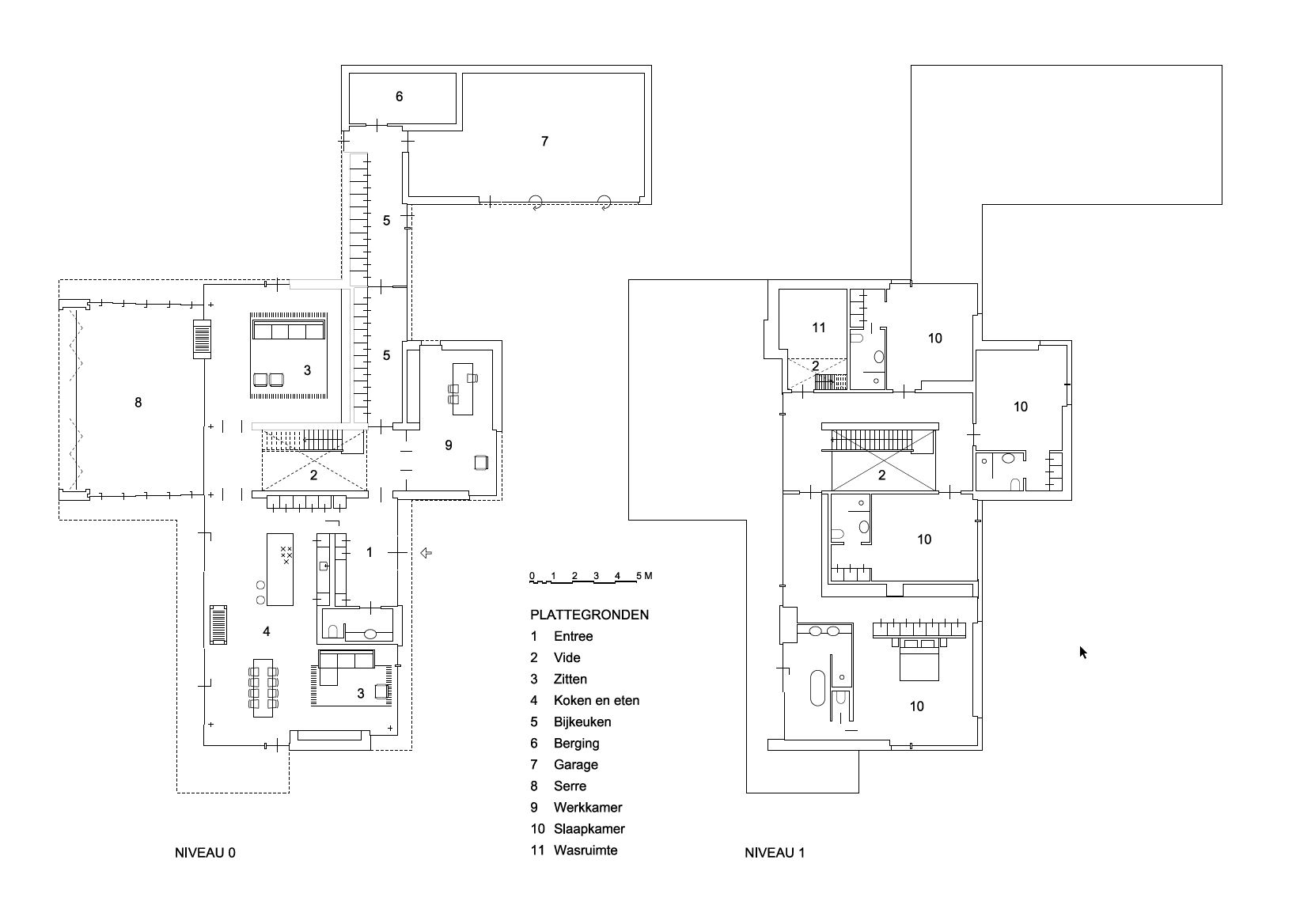
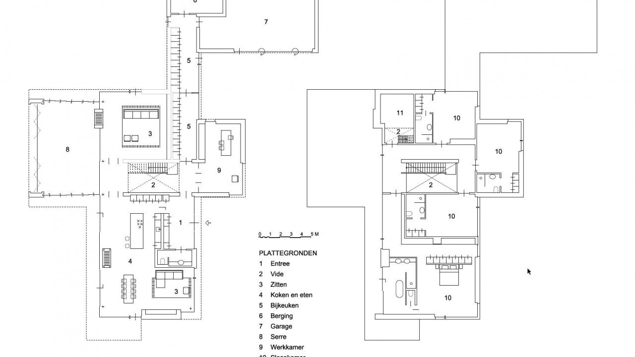
Villa Oisterwijk

Woonhuis
  • Plaats: Oisterwijk
  • Oplevering: september 2023

Reynaers systeem

HighFinity en ML-8

Gebruikte kleur

Brons

Andere projecten binnen Particuliere woningen